4955 Laguna Way, Nanaimo, BC V9T 5L6

Single Family Residence For Sale in North Nanaimo, Nanaimo

$1,198,000
  • 4 Beds
  • 3 Baths
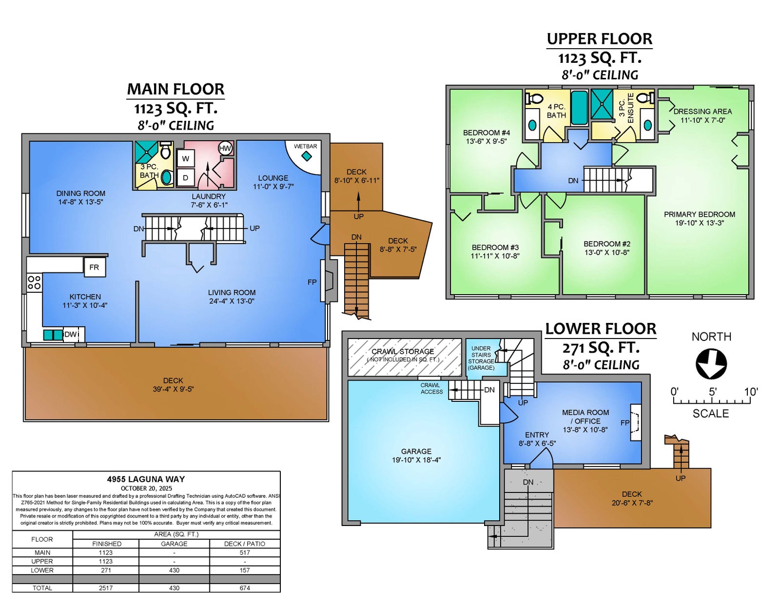
  • 2,517 Sq. Ft.
  • Built 1992


Welcome to this extraordinary, fully upgraded three-level country home in the city — a rare and remarkable property where the beauty of nature meets refined modern living. Perfectly positioned to capture breathtaking panoramic ocean and mountain views, this home is truly one of a kind.


From almost every room, you’ll be treated to ever-changing vistas of the Winchelsea Islands, Sechelt and the Sunshine Coast, the Lions Gate Bridge, and even the twinkling lights of the Vancouver skyline — all set against the shimmering expanse of the ocean. Whether it’s watching bald eagles gliding overhead, sailboats dancing across the waves, or the summer fireworks lighting up the night, every moment here feels like a moving painting.


As spring arrives, the yard bursts to life in a stunning display of colour and fragrance. Flowering rhododendrons, cherry blossoms, and other seasonal blooms transform the property into a private garden retreat. The landscape changes beautifully with the seasons, offering vibrant greens through summer and golden hues come autumn. Just a short distance away, you’ll find picturesque hiking trails, tranquil beaches, and nature parks, all inviting you to explore the incredible outdoor lifestyle this area is known for.


The home’s exterior showcases brand-new designer Hardie Plank siding, thoughtfully accented with classic cedar and stone, creating timeless curb appeal. A spacious glass-railed deck spans the front of the home, providing an ideal setting for morning coffee, outdoor dining, or evening entertaining beneath the stars.


Step inside to find a bright, open-concept living space designed to maximize natural light and connection to the outdoors. The large living room, anchored by a cozy fireplace, flows seamlessly to both decks, blending indoor and outdoor living in perfect harmony. A formal dining room sets the stage for special gatherings, while the ocean-view kitchen is a chef’s delight, featuring new stainless-steel appliances, ample cabinetry, and a layout that captures views while you cook. 

The updated laundry room offers new LG washer and dryer, abundant storage, and everyday convenience.


Upstairs, you’ll find four generous bedrooms, each offering spectacular ocean and forest views. The primary suite is truly a sanctuary — a spacious, light-filled retreat where the ocean meets the trees. It features elegant Art Deco-inspired touches, dual wardrobes, and statement ceiling fans that add both style and comfort. Two beautifully appointed bathrooms complete this level, including a sleek three-piece ensuite designed with modern finishes.


The ground level adds versatility with a media room or home office, providing a quiet space for work, play, or relaxation. A double garage, heat pump, and both propane and electric fireplaces ensure year-round comfort and peace of mind. With parking for up to seven vehicles, there’s plenty of room for guests, toys, or a growing family.


This exceptional home offers the best of both worlds — a peaceful, nature-filled setting with the convenience of city living. Every detail has been thoughtfully updated to blend comfort, beauty, and functionality.


Don’t miss your opportunity to own this truly remarkable property. Homes like this rarely come available — priced to sell, with flexible or quick possession available. Come experience it for yourself, and prepare to fall in love.

Address
4955 Laguna Way, Nanaimo, BC V9T 5L6
List Price
$1,198,000
Type of Dwelling
Single Family Residence
Style of Home
3 Storey
Transaction Type
Sale
Area
Nanaimo
Sub-Area
North Nanaimo
Bedrooms
4
Bathrooms
3
Floor Area
2,517 Sq. Ft.
Lot Size
19,591 Sq. Ft.
Year Built
1992
MLS® Number
1018222
Listing Brokerage
RE/MAX Select Properties
Postal Code
V9T 5L7
Zoning
R1
Tax Amount
$5,754.00
Tax Year
2024

Request More Info or a Showing

Leslie McDonnell Personal Real Estate Corporation

RE/MAX Select Properties

Mobile: 778-838-2378

Office: 778-800-3827

Email Directly

5487 West Boulevard. Vancouver B.C. V6M 3W5